Skip To Content

1211 N Belt - 202 Highway

St Joseph, MO 64506
  • $2,455
  • STATUS: Active
  • ON SITE: 602 Days
  • ID#: 2478546
UPDATED: 37 min ago
$2,455
  • 0
    BEDS
  • 1.46
    ACRES
  • 0
    BATHS
  • 0
    1/2 BATHS

School Ratings & Info

Description

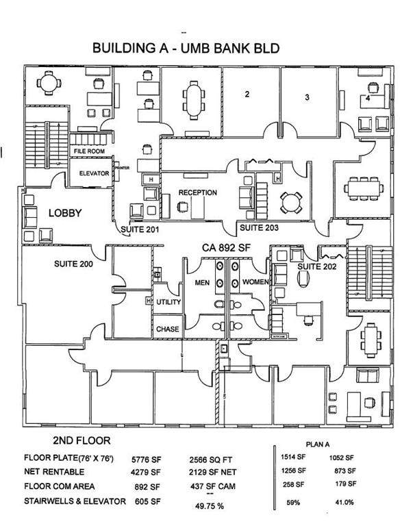
Space available on the 2nd floor of the UMB Bank building. Class A office space. 3 private offices and reception are available, see possible floor plan in photos. Additional tenants in building include the IRS, The Whole Person, Senior Specialists, and Parmele Law.



Heartland MLS Terms of Use

The information displayed on this page is confidential, proprietary, and copyrighted information of Heartland Multiple Listing Service, Inc. ("Heartland MLS"). Copyright 2025, Heartland Multiple Listing Service, Inc. Heartland MLS and Ron Henderson & Associates | Keller Williams Northland Partners do not make any warranty or representation concerning the timeliness or accuracy of the information displayed herein. In consideration for the receipt of the information on this page, the recipient agrees to use the information solely for the private non-commercial purpose of identifying a property in which the recipient has a good faith interest in acquiring. The data relating to real estate displayed on this website comes in part from the Heartland Multiple Listing Service database compilation. Data last updated: 2025-11-12T11:45:44.68.

Based on information submitted to the MLS GRID as of 2025-11-12T11:45:44.68 All data is obtained from various sources and may not have been verified by broker or MLS GRID. Supplied Open House Information is subject to change without notice. All information should be independently reviewed and verified for accuracy. Properties may or may not be listed by the office/agent presenting the information.
www.kansascityagent.com/homes/148721025
Print Image

1211 N Belt - 202 Highway St Joseph, MO 64506

  • Price: $2,455
  • Status: Active
  • On Site: 602 Days
  • Updated: 37 min ago
  • ID#: 2478546
0
Beds
0
Baths
0
½ Baths
1.46
Acres
2008
Built
Neighborhood:
1132 - Buchanan Co Nw-N=Co Line;S=I-36;E=I-29;W=M
County:
Buchanan
Area:
1132 - Buchanan Co Nw-N=Co Line;S=I-36;E=I-29;W=M
Property Description
Space available on the 2nd floor of the UMB Bank building. Class A office space. 3 private offices and reception are available, see possible floor plan in photos. Additional tenants in building include the IRS, The Whole Person, Senior Specialists, and Parmele Law.
Exterior Features

Number Of Docks 0 Number Of Drive In Doors 0 Parking Features Parking Lot Road Frontage Type City StreetHighway

Interior Features

Accessibility Features Accessible BathroomAccessible Common AreaAccessible DoorsAccessible EntranceAccessible Hallway(s) Interior Features ElevatorPublic Restroom

Property Features

Age Description 11-15 Years Business Type Other Current Use Office In Flood Plain No Leasable Area 1052 Leased YN No Listing Agreement Exclusive Right To Sell Listing Terms Other Location Features Free Standing Maintenance Description Building ExteriorHVACJanitorial ServiceLawnRoof Repair Maintenance Provided YN Yes Occupancy Description Annual Property Sub Type Office Sale Includes Other Tax Total Amount 0 Transaction Type Lease Utilities Electricity AvailableSewer AvailableWater Available Zoning C-3

Listing information © 2025 Heartland MLS as distributed by MLSGRID.
Listing courtesy of BHHS Stein & Summers.



Heartland MLS Terms of Use

The information displayed on this page is confidential, proprietary, and copyrighted information of Heartland Multiple Listing Service, Inc. ("Heartland MLS"). Copyright 2025, Heartland Multiple Listing Service, Inc. Heartland MLS and Ron Henderson & Associates | Keller Williams Northland Partners do not make any warranty or representation concerning the timeliness or accuracy of the information displayed herein. In consideration for the receipt of the information on this page, the recipient agrees to use the information solely for the private non-commercial purpose of identifying a property in which the recipient has a good faith interest in acquiring. The data relating to real estate displayed on this website comes in part from the Heartland Multiple Listing Service database compilation. Data last updated: 2025-11-12T11:45:44.68.

Based on information submitted to the MLS GRID as of 2025-11-12T11:45:44.68 All data is obtained from various sources and may not have been verified by broker or MLS GRID. Supplied Open House Information is subject to change without notice. All information should be independently reviewed and verified for accuracy. Properties may or may not be listed by the office/agent presenting the information.
 
https://bt-photos.global.ssl.fastly.net/heartland/orig_boomver_1_2478546-1.jpg https://bt-photos.global.ssl.fastly.net/heartland/orig_boomver_1_2478546-1.jpg https://bt-photos.global.ssl.fastly.net/heartland/orig_boomver_1_2478546-1.jpg
Logo
Ron Henderson & Associates | Keller Williams Northland Partners
851 NW 45th Street
Kansas City MO, 64116